21 Upper Main Street, Buncrana, Co. Donegal
21 Upper Main Street, Buncrana, Co. Donegal
Prime Development site for sale by private treaty
Price on Application
Property Overview
Available From: Immediately
Price on Application
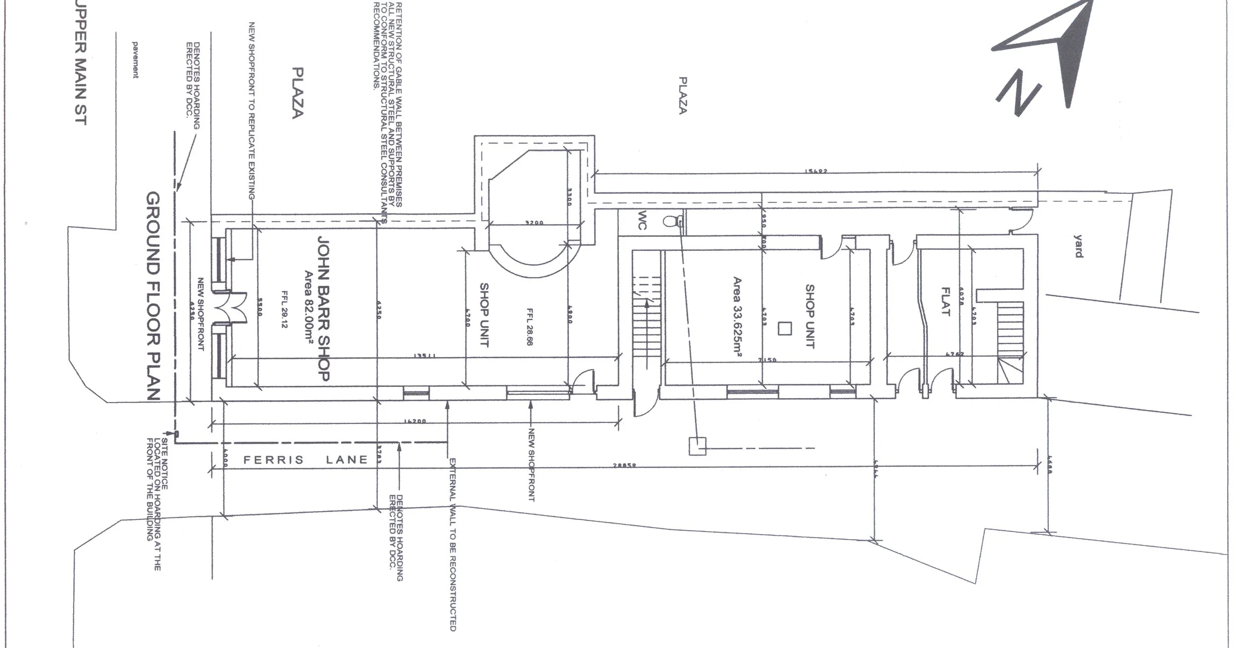
Description
Sale Type: For Sale by Private Treaty
Overall Floor Area:
This is a strategic site close to the intersection of Buncrana Main Street and Ferris Lane in the heart of Buncrana’s commerical centre
DESCRIPTION The property comprises a redevelopment site extending to Hectares (acre). There is planning permission for a development of mixed residential and commercial building. Given the amenities and strong transport links to the site, this may be suited to mixed use development.
SERVICES The main services of water, electricity and drainage are available.
TOWN PLANNING The property is situated in an area zoned objective
The site benefits from excellent frontage onto the Main Street. which offers a host of local amenities with boutique shops, cafes, restaurants, schools and sports clubs, making it a popular commuter centre to Derry City Centre. Situated 15 minutes drive from of the Derry city.
Notice
Please note we have not tested any apparatus, fixtures, fittings, or services. Interested parties must undertake their own investigation into the working order of these items. All measurements are approximate and photographs provided for guidance only.
Crana Financial Services ltd., property details are intended as a guide only and do not form part of a contract, nor are they guaranteed. Buyers should satisfy themselves as to any information contained therein, measurements, structural condition and boundaries. Prospective buyers are recommended to employ their own surveyor/architect for independent guidance and advice.






















